О компании
Общество с ограниченной ответственностью "Специализированный застройщик "Аврора-М" занимается строительством многоквартирных домов в городе Димитровграде.

Новый многоквартирный жилой дом, расположенный в удобной локации. В шаговой доступности находятся магазины, остановки общественного транспорта, школа, детский сад.
Благоустройство придомовой территории многоквартирного дома
· Освещение; · Детская площадка; · Спортивная площадка; · Парковочная зона; · Площадка для сбора и вывоза мусора.
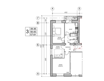
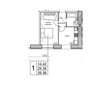
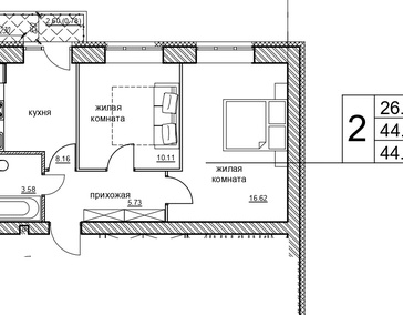
Выберите подходящую для Вас планировку
Расположение
Преимущества
Этапы строительства
Обращаем ваше внимание на то, что данный интернет-сайт, а также вся информация, предоставленная на нём, носит исключительно информационный характер и ни при каких условиях не является публичной офертой, определяемой положениями Статьи 437 Гражданского кодекса Российской Федерации
Контактные данные
+7 927 813 11 77 avrora-malykla@yandex.ru Ульяновская обл., г., Димитровград, пр-кт, Автостроителей, 78/46



















